Minihus er en voksende trend i boligmarkedet. Den gjør det mulig for flere, spesielt unge og uetablerte, å komme seg inn på boligmarkedet. Allerede i 2021 var regjeringen på banen for å gjøre det enklere for folk som ønsker denne boformen.
– Minihus er en internasjonal trend som også brer seg i Norge. De krever mindre bruk av bygningsmaterialer og tomter. Det kan gi rimeligere og mer miljøvennlige boliger. Vi ser at flere ønsker å bo i mikrohus, og at dagens regelverk ikke er tilpasset denne boformen. Derfor vil vi forenkle byggereglene, sa daværende kommunal- og moderniseringsminister Nikolai Astrup.

Minihus må naturligvis oppfylle grunnleggende krav til helse og sikkerhet, men kravene er i hovedsak de samme som kravene til fritidsbolig. Helge Huse hos Lab 4 har tegnet et minihus på oppdrag fra samarbeidspartner i et prosjekt med Gjøvik og omegn boligbyggelag.
– Hva er et minihus egentlig, og hva gikk prosjektet ut på?
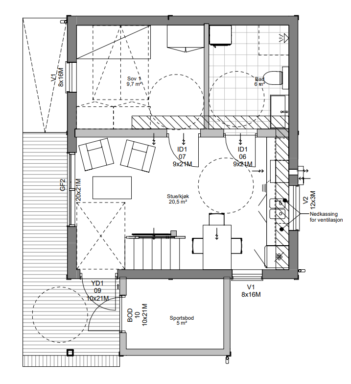
– Et minihus er akkurat det det høres ut som: Et bitte lite hus på få kvadratmeter som skal inneholde alt det nødvendigste som i en enebolig. Oppdraget gikk opprinnelig ut på å tegne tre ulike minihus på henholdsvis 50, 35 og 20 kvadratmeter. Alle skulle være «tilgjengelig boenhet». En tilgjengelig bolig er en bolig hvor planløsningen er tilrettelagt for at noen med bevegelsesnedsetting også skal kunne bo i boligen.
I prinsippet er det tre typer rom som skal plasseres i forhold til hverandre på et minimalt areal: Soverom, bad/toalett og stue/kjøkken. Dette er ikke mulig! var min første tanke. Men jeg gikk løs på oppgaven med fynd og klem, og hadde gode sparringspartnere underveis. Det viste seg raskt at de to minste enhetene ikke var fysisk mulig å realisere i henhold til gjeldende regelverk. Det lot seg faktisk ikke gjøre. Så vi landet på det største av de tre. Det er et snedig konsept med to etasjer, to soverom hvorav det ene i 2. etasje, med en loftstue og en terrasse der oppe, samt inngangsparti med uteplass på grunnplan. Vi har samarbeidet med oppdragsgiver i andre sammenhenger gjennom flere år, og mye av jobben var allerede gjort med det konseptet vi fikk, og de begrensningene som fulgte med.
Helge forteller videre at dette konseptet var solgt til utbygging hos Gjøvik og omegn boligbyggelag, syv hus til et nytt boligfelt på Raufoss. Ytterligere to forslag er levert spisset inn mot samme boligbyggelag, til boliger tenkt satt opp på Gjøvik og Lena. Samarbeidspartner har en produksjonsavdeling der husene blir produsert, og kommer så til byggeplassen som et modulhus levert på stedet og satt sammen.

– Har du tegnet mikrohus før?
– Nei! Jeg har tegnet alt fra postkasse- og søppelkassehus til eneboliger, tomanns-, firemanns- og åttemanns-, til skoler, lagerlokaler og idrettshaller. Så jeg har vært innom det meste. Unntatt svømmehaller og bomberom! Men det kommer kanskje, hvem veit.
– Hva var den største utfordringen med dette oppdraget?
– Det var størrelsen, kommer det kontant fra Helge.
– Det er alltid gøy med noe nytt. I prinsippet er det jo det samme jeg gjør, bare at her var begrensningene litt trange. I utgangspunktet var denne modellen tenkt som med utseende av et moderne hus med fasadeplater, ønsket var «grønt tak», men det ble en praktisk tilnærming med svart takshingel. Nå bygges de også med liggende panel og utvendig overbygg over inngangspartiet. De første var uten, så det har vokst seg til etter hvert. Ting kan justeres til en viss grad, om det er individuelle ønsker, men en del er også litt opptil kommunen.

– Det er mye fokus på minihus og enkle, funksjonelle løsninger for tiden. Hva tenker du om denne trenden?
– Foreløpig er det ganske nytt, men det blir bygget mye av det, og vil nok komme til å ta av framover. I et minihus har du plass til svært lite. Skal du bo slik må du nok rydde i garderoben din. Du kan ikke ha tredve par sko og hundre jakker. Du må kunne bruke en ting på flere områder, og nedskalere livsstilen din noe. Selvsagt må du ha basistingene som for eksempel kjøleskap. Men du kan ikke ha tjue kasseroller, kanskje bare to. Jeg er selv bortskjemt med stor plass, og kunne ikke bodd slik. Men det handler om innstilling og mentalitet. Bruk og kast holder ikke lenger. Jeg vil påstå at det er litt i trangeste laget for en barnefamilie for eksempel, men neste generasjon tenker annerledes kanskje. Det er ideelt for unge uetablerte om du ønsker å komme deg inn et sted og eie det selv.
Helge forteller videre at minihusene gjerne er lagt slik at man ikke trenger å ha bil, i nærheten av knutepunkter for offentlig transport. Det er tatt miljøvennlige hensyn slik at du kan sykle eller ta buss eller tog.
– Du får et knøttlite hus for seg selv med en bitteliten uteplass, men den er fortsatt din egen. Og det koster ikke det hvite ut av øyet. På denne måten går det an å komme seg inn på boligmarkedet uten altfor mye egenkapital.
Helge mener det ikke finnes problemer, bare utfordringer. Som kan løses:
Oppdraget har bare vært moro. Du vil jo gjerne trå til når det kommer en forespørsel. Og det ble vellykket. Husene er produsert, satt opp og solgt. Dette hadde jeg aldri gjort før, det var en artig oppgave. Det er gøy å se at det blir brukt.